Gebouw voor gemengd gebruik
Op aanvraag (In optie)

Grote Markt 45, 2300 Turnhout
    • delen

Omschrijving Ref.: 6821776

Ook succesvol verkopen? Bel ons voor een gratis schatting!


Zeldzame kans op dé Grote Markt van Turnhout – Wonen en werken combineren op toplocatie!

Op zoek naar een uniek pand met karakter, ruimte én een toplocatie? Dan is dit uitzonderlijke eigendom op de Grote Markt van Turnhout precies wat u zoekt.

Met een commercieel gelijkvloers van ca. 225 m² biedt dit pand alle troeven om uw droomzaak te realiseren – van winkel tot horecazaak. Dankzij de brede vitrine en grote raampartijen aan de straatzijde geniet u van maximale visibiliteit en lichtinval. Een ruim terras behoort tot de mogelijkheden en verhoogt het potentieel van deze toplocatie nog meer.

Daarbovenop beschikt het pand over ca. 200 m² aan woonruimte op de verdiepingen, die u volledig naar eigen smaak kunt opfrissen of renoveren. Perfect voor wie wil wonen boven de zaak, een extra opbrengsteigendom zoekt of houdt van een renovatieproject met karakter en uitstraling.

Steek de handen uit de mouwen en maak van dit pand uw parel: een stijlvol woon-werkconcept op een van de mooiste plekken van de stad.

Mogelijkheden te over – laat uw creativiteit spreken!

Locatie: Grote Markt, hart van Turnhout
Oppervlakte handelspand: ca. 225 m²
Oppervlakte woonruimte: ca. 200 m²
Authentieke gevel, grote raampartijen, potentieel terras

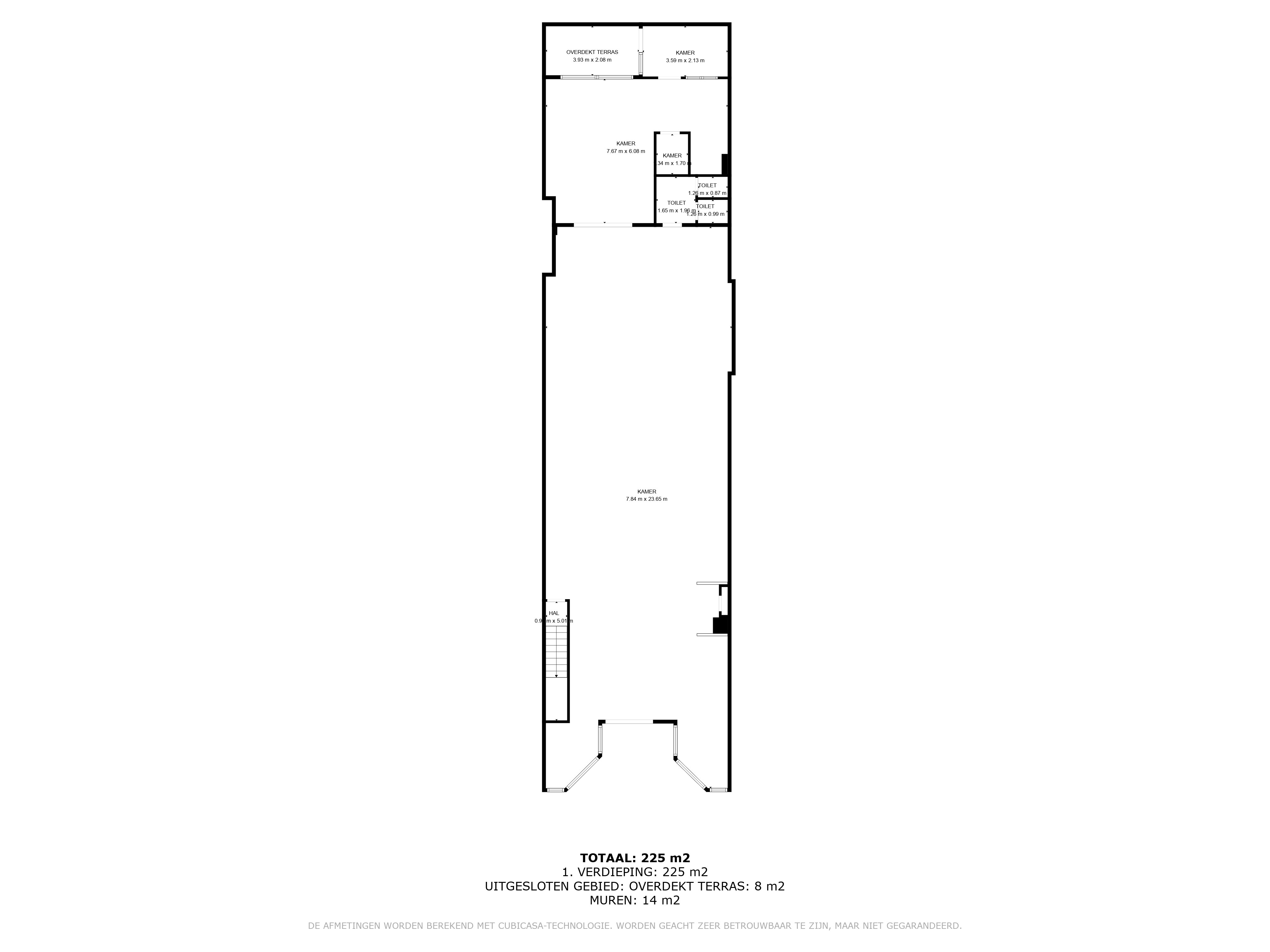
Bekijk de plannen op echovastgoed.be

Grijp deze unieke kans en maak van dit pand uw droomcombinatie van wonen én ondernemen.


Uw contact

Anthony van Kemenade +32 (0) 496 64 80 62
contact

Details van het pand

Financieel

Prijs
Info op kantoor
Onder BTW stelsel
Nee
Beschikbaarheid
Vanaf akte
Opbrengsteigendom
Ja

Ligging

Buurt
Handelsligging, stadskern
School nabij
20m
Winkels nabij
1m
Openbaar vervoer nabij
1m
Sportcentrum nabij
25m

Gebouw

Oppervlakte
324,00 m²
Aantal gevels
2
Bouwjaar
1950
Staat
Te renoveren
Aantal verdiepingen
2
Breedte vitrine
7,50 m
Oppervlakte hoofdgebouw
250 m²
Gevelbreedte
7,50 m
Type dak
Puntdak
Oriëntatie voorgevel
Zuidwesten

Terrein

Grondoppervlakte
258,00 m²
Oriëntatie terras 1
Zuidwesten

Indeling

Commerciële ruimte
Ja

Comfort

Handicapvriendelijk
Nee
Lift
Nee

Specifieke ruimtes

Restaurant
Ja
Toiletten M/V
Ja

Energie

EPC
360 kWh/m²/jaar
EPC unieke code
20250618-0003627614-RES-1
Dubbele beglazing
Ja
Ramen
Thermisch aluminium
Type verwarming
Gas
Verwarming
Individueel

Technieken

Elektriciteit
Ja
Telefoonbekabeling
Ja
Riolering
Ja
Gas
Ja
Water
Ja

Stedenbouw

Bestemming
Woongebied met een cult., hist. en/of esthetische waarde
Bouwvergunning
Niet meegedeeld
Verkavelingsvergunning
Niet meegedeeld
Voorkooprecht
Nee
Asbestinventarisattest
Ja
Asbestinventarisattest opmaak datum
27/06/2025
Asbestinventarisattest informatie
Asbest veilig
Dagvaarding
Geen rechterlijke herstelmaatregel of bestuurlijke maatregel opgelegd
Servitude
Nee

Meer info over deze eigendom

Bedankt voor je bericht, we contacteren je zo spoedig mogelijk.
Er was een probleem bij het versturen van het formulier, gelieve opnieuw te proberen.
U moet de algemene voorwaarden aanvaarden om dit bericht te kunnen verzenden
(*) Gelieve de verplichte velden in te vullen.